593 2nd Street

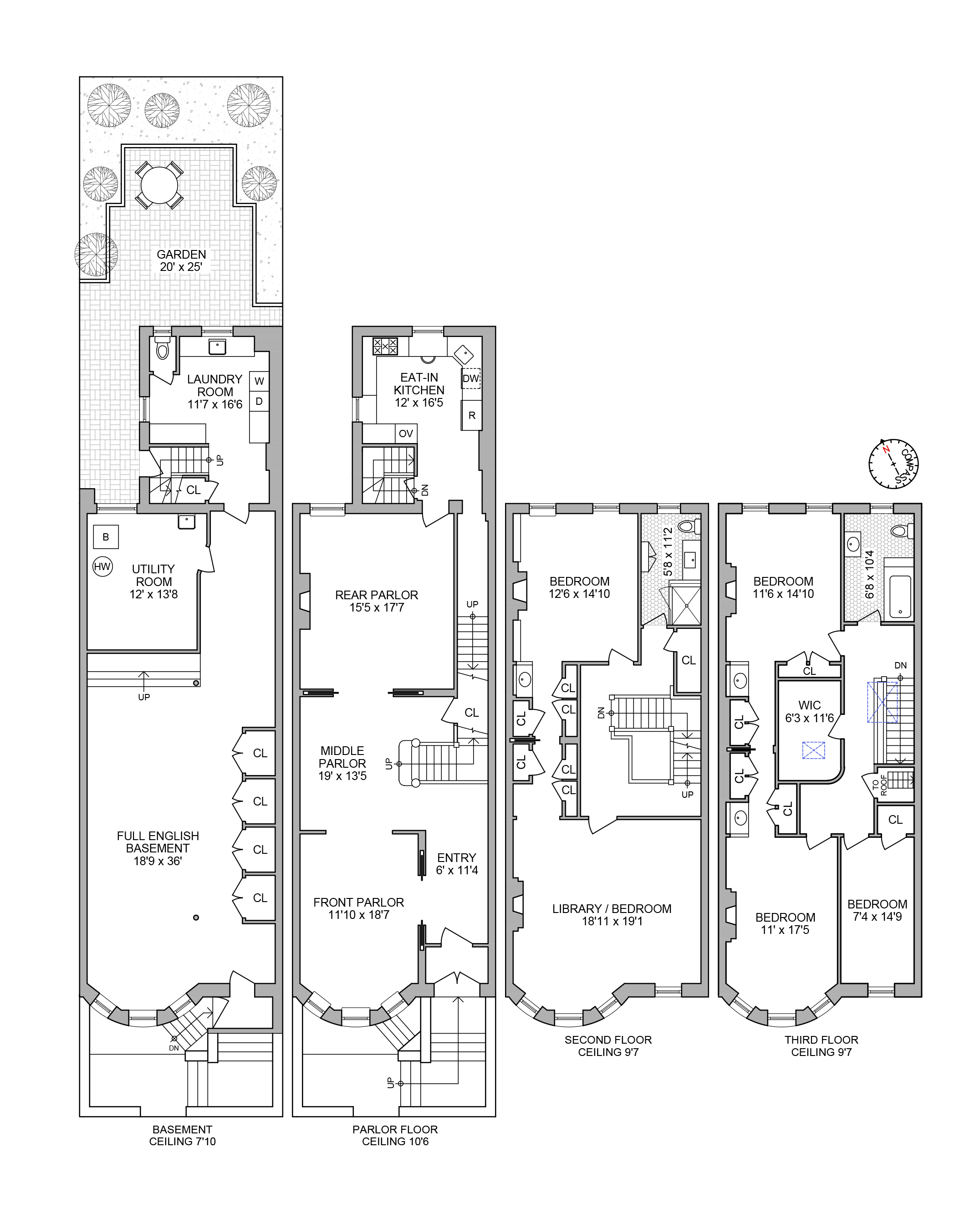
Perched atop the Slope on the park block of 2nd Street sits this four story, 20 foot wide center- stair limestone designed by the famed 19th Century architect Axel Hedman is located just down the block from esteemed Ethical Culture Fieldstone School and Poly Prep Country Day School. Grand in scale and detail, 593 2nd Street has a thoughtful layout and superb location. Entering into the parlor floor, the scale of the house is immediately evident with its 10’6 ceiling height, ornate staircase and welcoming foyer. Through the foyer is a large dining room, with a south facing bay window letting in light and opening up to the center parlor. The center parlor is a grand landing space for the stunning center staircase. The formal living room is nicely proportioned and has beautiful waist-high wainscoting. There is a large, original wooden decorative mantle and a large window facing the garden. The eat-in kitchen is located off of the living room, in the extension of the house. With two large windows and plenty of the light, the kitchen has a perfect layout for the everyday chef. There is also a large kitchen pantry, as well a secret back staircase to the second floor.

Above the parlor floor, the house has an ideal master bedroom suite layout. The front of the house has a large den with four windows and an original mantle, making it the perfect casual retreat from the formal parlor floor. Through a back hallway, lined with a surplus of closet space on either side, is the master bedroom. With another ornate mantle and gorgeous hardwood floors, the garden facing bedroom is quiet and serene. The recently renovated bathroom has a glass shower stall, marble hexagon floor tiles, and an original stained glass window.

The top floor of the house has three more bedrooms, a walk-in closet and another lovely bathroom. The front of the house has two bedrooms, one with a bright bay window facing south, the other, smaller in scale, can also be used as an office. In the back of the house is another large bedroom with windows overlooking Brooklyn rooftops. The bathroom on this floor was also recently renovated, with marble tile floors, subway tiles, a marble tub surround, and an original stained glass window.

The English basement provides a myriad of options. Most recently it has been used as a children’s recreation space, with a large open floor plan, a built-in stage and good ceiling height. The possibilities provided by the layout and ceiling height showcase the great value of this house. There is also a large, windowed laundry room with a half bathroom in the back of the English basement.

The garden, which is accessed from the kitchen, measures 20 x 25 and is professionally landscaped. The brick patio surrounded by a lush flower bed and the classic views of Brooklyn rooftops make for a serene and quiet escape.

My Account